修车大队楼凤论坛最新公告 ,广州桑拿网蒲友论坛最新活动,2025小姐威客信息最新动态,栖凤阁论坛最新动态

咨询热线0371-6777 2727

当前位置:
  1. 首页
  2. >
  3. 新闻中心
  4. >
  5. 新闻正文

需要对砂石料进行清洗,可选用的洗砂设备有几种?

作者:石桂英 发布时间:2016-01-20 09:14:32 更新时间:2018-05-11 15:17:33
上一篇 已经是最后一篇了

为了提高砂石料的应用品味,需要使用相关的砂石料清洗设备进行清洗,目前常用的砂石料清洗设备有轮斗洗砂机和螺旋洗砂机,轮斗洗砂机运用叶轮的翻滚来清洗砂石,螺旋洗砂机利用内部螺旋叶片的推进对砂石料进行清洗,两种洗砂设备各有优势,轮斗洗砂机操作方便,一次处理量大,故障率低,螺旋洗砂机建筑清洗和分选两种功能,洗净度高,成品品味高。

轮斗洗砂机

轮斗洗砂机

螺旋洗砂机

螺旋洗砂机

1、第一种,轮斗洗砂机

轮斗洗砂机是非常传统的洗砂机设备,技术成熟,更能结合国内砂石物料的清洗特征,对于各类矿石的清洗能力更强。轮斗洗砂机不能布置在离水源比较近的地方,避免出现塌陷的现象,轮斗洗砂机的所有部件,除了筛网以外,几乎没有易损件,也就是说,轮斗洗砂机在长期使用过程中不需要进行频繁的检修。轮斗洗砂机相比砂石料破碎、制砂设备,结构更加简单,操作简单,不需要太多操作技巧,深受用户欢迎。

轮斗洗砂机

轮斗洗砂机内部结构

轮斗洗砂机内部结构

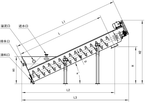
2、第二种,螺旋洗砂机

螺旋洗砂机清洗过后的细粒成品更加的稳定,成品经过分选后,具有更加高的品味,螺旋洗砂机还具有除杂效果,轻松除去各类矿石资源中的杂物,提高成品规格。螺旋洗砂机与轮斗洗砂机相比,一个显著的优点就是,密封性能非常好,密封有两个明显作用:一是减少清洗过程中,小颗??笫突页径曰肪车奈廴荆侨繁I笆锨逑垂讨胁皇芡饨缭又实那秩?,保证良好的清洗效果,轮斗洗砂机和螺旋洗砂机,各有优势特点,两者洗净度都非常高,用户可根据清洗要求选购。

螺旋洗砂机

螺旋洗砂机内部结构

螺旋洗砂机内部结构

免费获取
  • 建厂方案
  • 投资分析
  • 环保政策分析
+ 在线留言

如果您对我们的产品有任何需求、建议和意见,请您留言! 看到信息后会第一时间给您回复。谢谢!